Local en alquiler El Barri Gòtic (Barcelona Capital)Ref. L-0345
1.750,00€- 108,00 m2
- 2 Hab.
Descripción
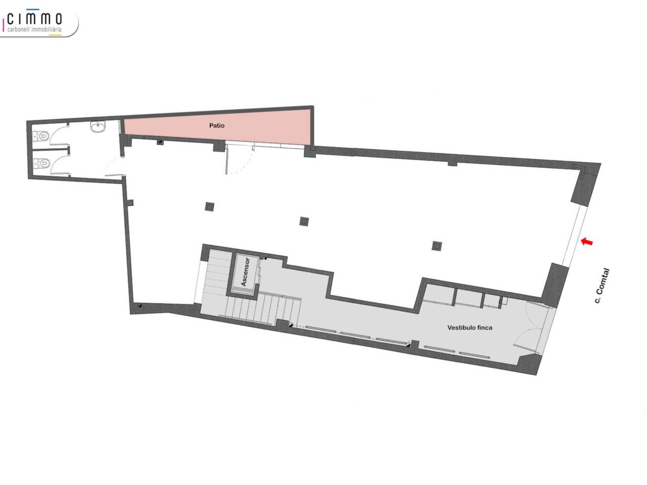
Local comercial en el Barrio Gótico: excelente situación junto a un hotel de 5 estrellas, apartamentos turísticos y el Palau de la Música. Zona muy comercial: en c/ Comtal junto Via Laietana. Su última actividad ha sido como centro de SPA y tratamientos de belleza. Apto para tienda, oficina o estudio profesional. Tiene una superficie de 108 m² (100 m² útiles). Hace 5 metros de ancho por 20 metros de fondo. Situado a pie de calle. Fachada de 2,50 metros. Actualmente consta de una amplia sala principal y otra sala auxiliar separadas por paneles de “Pladur”. Aseo doble de 6 m². Cocina office de 6 m². Patio interior de 7 m². Suelos de parquet. Cierre mediante persiana metálica manual. Suministros de agua y luz dados de alta. Finca construida en el año 1850. Perfectamente comunicado a dos minutos caminando de la estación de metro “Urquinaona” (L1 y L4) y junto a toda la red de transportes urbanos e interurbanos de la Plaça Catalunya (bus, metro, trenes y conexión con el aeropuerto). Próximo también a grandes centros comerciales. Etiqueta de calificación energética: D. Condiciones: Fianza de dos meses. Se requiere solvencia demostrable mediante nómina o renta. Ref. L-0345. Recomendamos consultar en las oficinas municipales el tipo de licencia necesaria para su negocio, antes de realizar la visita al local.
Detalles
- Habitación simple: 2
- Aseos: 2
- Acceso: A pie de calle
- Tipo de negocio: Tienda, oficina
- Portes: 1
- Planta baja: Si
-
Certificación energética: D




























